Online Chat?

Project Overview

Situated in Holmer Green, the property was a modest three-bedroom bungalow positioned on a generous plot. Although the site offered significant potential, the house itself required comprehensive modernisation. The layout was single-storey, with limited space and no option for extra accommodation in the roof. While functional, the property did not fully capitalise on the plot’s size or its relationship with the garden.

Projects

Previews Projects

Flats in Wooburn green

Flats in Wooburn green

The site was previously occupied by a single residential dwelling.

Five bedroom house

Five bedroom house

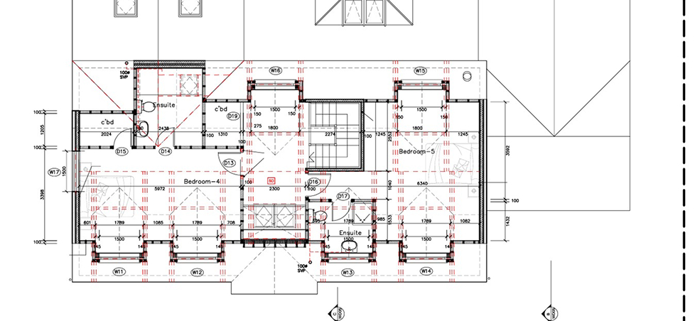
We were commissioned to design a substantial five-bedroom family home in a highly desirable residential area of Beaconsfield

Five bedroom house in Beaconsfield

Five bedroom house in Beaconsfield

We were commissioned to design a substantial five-bedroom family home in a highly desirable residential area of Beaconsfield

View All
Get in touch

We’d love to hear about your project.

    Please share a brief overview of your project, location, and any timelines you have in mind. We'll get back to you as soon as possible.

    SUBMIT NOW