Online Chat?

Chartridge LaneChesham, Extension & Remodelling

Situated in a highly sought-after semi-rural setting, the property enjoys an elevated position with outstanding views across the rolling countryside of the Chiltern Hills.

Original Property

The house was previously a dated three-bedroom home with a small kitchen and limited living space, which did not fully maximise the generous plot or its spectacular views.

The Brief

The objective was to significantly extend and reconfigure the property to create four well-proportioned bedrooms and introduce a spacious open-plan kitchen and family area, alongside a separate study, while enhancing natural light and improving the overall flow of the home.

The Transformation

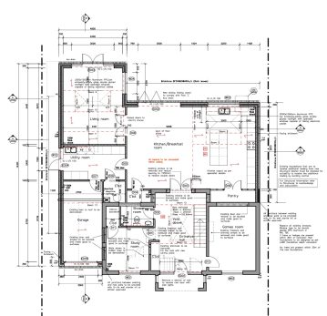
The property has been thoughtfully extended and remodelled to deliver a substantial and contemporary family home. The ground floor now features a stunning open-plan kitchen and family room, complemented by a separate study and utility room. Large bi-fold doors open onto the garden, perfectly framing the countryside views, while a rooflight above the living and kitchen area floods the space with natural light.

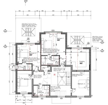
To the first floor, a spacious landing leads to four generous bedrooms. The principal suite benefits from a Juliet balcony overlooking the surrounding landscape, a large dressing room, and a private en-suite. The second bedroom also enjoys the benefit of its own en-suite shower room, providing excellent flexibility for guests or family members. The remaining two bedrooms are well-sized and served by a substantial family bathroom.

Carefully selected facing brickwork was used to match the original house, ensuring the extension blends seamlessly with the existing structure and retains the property’s character.

The Outcome

The result is a beautifully balanced home that combines traditional character with modern open-plan living. The reconfiguration has maximised space, light, and views, transforming a modest, dated property into a stylish and functional four-bedroom family residence perfectly suited to its stunning semi-rural setting.

Projects

Previews Projects

Extension in Penn

Extension in Penn

The property was a traditional 1930s-style house with a conventional cellular layout and a flat-roofed garage.

Extension in Great Missenden

Extension in Great Missenden

Situated within the Green Belt Settlement Area and the Chiltern Area of Outstanding Natural Beauty

Extension in Winchmore hill

Extension in Winchmore hill

The existing house occupied a constrained plot with limited width and significant level changes across the site.

View All
Get in touch

We’d love to hear about your project.

    Please share a brief overview of your project, location, and any timelines you have in mind. We'll get back to you as soon as possible.

    SUBMIT NOW