Online Chat?

Original Property

Situated within the Green Belt Settlement Area and the Chiltern Area of Outstanding Natural Beauty, the existing chalet bungalow occupied a highly sensitive and visually prominent site. Despite its location among predominantly two- and three-storey dwellings, the property remained single-storey in scale, appearing underdeveloped and somewhat incongruous within the established streetscape. Internally, the layout was restrictive and inefficient, with accommodation lacking clear circulation routes and failing to respond to the evolving needs of a growing multi-generational family. Limited space, poor spatial flow, and an absence of functional zoning highlighted the need for comprehensive reconfiguration and expansion.

The Brief

The brief was to create a substantial yet contextually sensitive family home that would increase the overall accommodation without overdeveloping the site. The design had to respond appropriately to Green Belt and AONB planning constraints while improving internal circulation and spatial clarity. The home needed to provide high-quality living spaces suitable for multi-generational occupation, enhance natural light, and integrate harmoniously with the surrounding built character. A key objective was ensuring that any extension respected both local planning policy and the area’s architectural language while delivering a home fit for modern living.

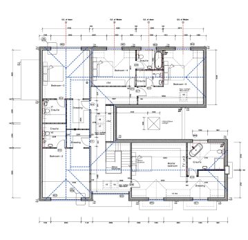
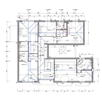
The Transformation

To address these objectives, a carefully considered extension introduced an additional floor within the existing footprint. This strategy enabled a substantial increase in accommodation while maintaining a controlled and policy-compliant building envelope appropriate to the site’s sensitive context. The internal layout was completely reimagined, now including a generous entrance hall, a dedicated snooker room, a spacious kitchen and breakfast area, a well-proportioned living room, and five bedrooms, each with its own ensuite. Circulation was rationalised to establish a clear and logical flow between spaces, while enhanced glazing and improved spatial planning maximised natural light throughout. Externally, the design responded sensitively to local character with rendered walls, red clay tiles, and oak lintels, in line with Chiltern design guidance, ensuring material quality and cohesion with the surrounding built form. Following initial objections from neighbouring residents, the scheme was refined through detailed consultation and negotiation with the local planning authority. By demonstrating careful consideration of scale, massing, and contextual character, planning approval was ultimately secured.

The Outcome

The completed development transforms a modest and poorly configured bungalow into a substantial yet contextually sensitive family residence. The additional storey establishes a more proportionate relationship with neighbouring properties, strengthening the overall streetscape composition. Importantly, the design achieves a balanced response to Green Belt policy constraints while delivering a home that supports modern, multi-generational living. The result is a refined architectural intervention that enhances both the immediate setting and the property’s long-term residential value.

Projects

Previews Projects

Extension in Penn

Extension in Penn

The property was a traditional 1930s-style house with a conventional cellular layout and a flat-roofed garage.

Extension in Chartridge lane

Extension in Chartridge lane

Situated in a highly sought-after semi-rural setting, the property enjoys an elevated position

Extension in Winchmore hill

Extension in Winchmore hill

The existing house occupied a constrained plot with limited width and significant level changes across the site.

View All
Get in touch

We’d love to hear about your project.

    Please share a brief overview of your project, location, and any timelines you have in mind. We'll get back to you as soon as possible.

    SUBMIT NOW